• Clients:

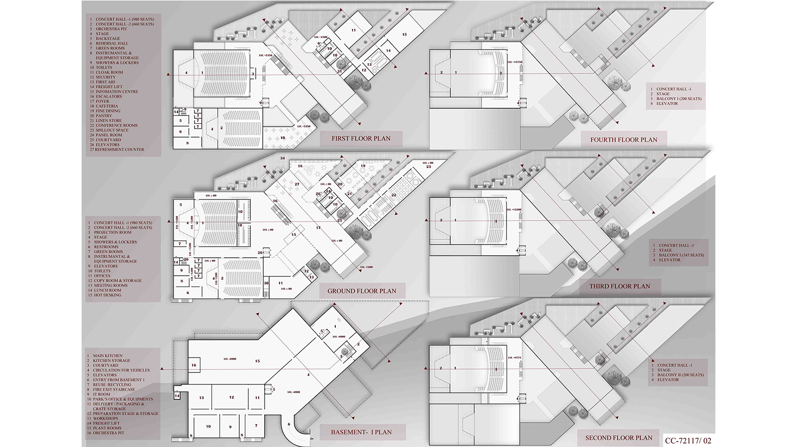
    Concert Hall

  • Location:

  • Area:

  • Status:

    Completed



Concert Hall

The idea revolves around honoring the heritage of the European Capital of culture (Kaunas) by integrating the building with surrounding districts – the oold and the new parts of the city visually connected to the cultural hall.

Previous Project

Bamiyan Cultural Centre

Next Project

Police Memorial